کلبه چوبی 52/51 متر مربع و مراحل ثبت سفارش:
بستن قرار داد ثبت سفارش محصول که شامل :
1) بخش سفتکاری شامل :
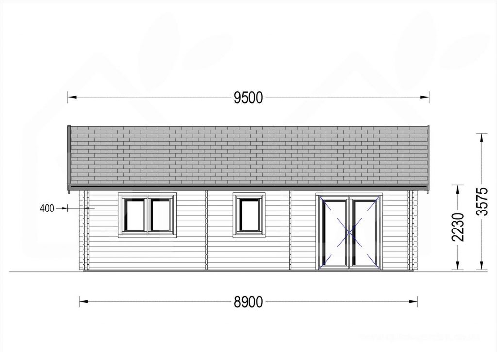
- تولید و اجرای کلیه دیواره ها از جنس چوب کاج (pine ) بصورت دو جداره و تنها دیواره های داخلی تک جداره خواهد بود .
- ضخامت دیواره اصلی 20 cm + ضخامت دیواره داخلی 6 cm .
- رنگ مورد استفاده از نوع رنگ گیاهی ساخت کشور آلمان خواهد بود و یک دست رنگ برای کل بخش های چوبی تولید شده در سفتکاری اجرا خواهد شد .
- معماری سازه دقیقا بر اساس نقشه پیوستی اجرا خواهد شد .
2)بخش نازک کاری شامل :
- پوشش بام از جنس ورق های گالوانیزه رنگی درجه یک
- اجرای پنجره ها از جنس UPVC می باشد .
- اجرای کف طبقه بالا از جنس چوب ، کف طبقه اول اجرای کفپوش از جنس PVC خواهد بود.
- عایق کف تراس و اجرای نرده تراس چوبی
توجه :
- با توجه به استقبال از کلبه چوبی 52/51 متر مربع امکان انتظار برای تولید این محصول حداکثر تا 2 ماه وجود خواهد داشت .
- یک فونداسیون ساده توسط کارفرما اجرا خواهد شد .
- کلیه هزینه های تیم نصب در مدت کوتاه نصب محصول در محل پروژه ، از تعهدات کارفرما می باشد .
- با توجه به این که امکان تولید و ارسال محصول به سراسر کشور وجود خواهد داشت و اجرای تاسیسات در نقاط مختلف و در شرایط آب و هوایی مختلف متفاوت است امکان محاسبه تاسیسات وجود نداشته و هزینه های اعلام شده بدون اجرای تاسیسات خواهد بود .
- مواردی که در بخش توضیحات و توضیحات تکمیلی قید شده است در مورد محصول A-5251 به متقاضی ارائه خواهد شد .
قیمت ها بر اساس قیمت روز دلار محاسبه می شود و قیمت معادل ریالی با نوسانات قیمت دلار تغییر می کند .



















